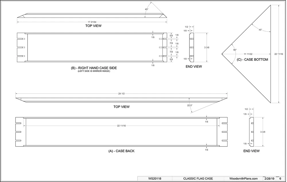
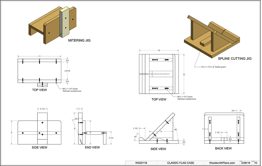
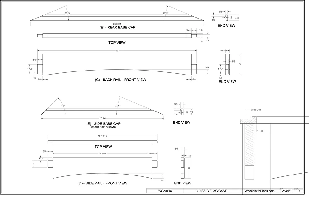
It only takes a quick look at the photos of this project to see that this classic-looking bookcase is a great way to transform some unused wall space into versatile storage. But it’s not until you get into all the simple construction details that you see the full picture.
Sale!
Classic Bookcase
Original price was: £12.95.£9.07Current price is: £9.07.
- There are quality problems, free return and exchange
- Guaranteed High Quality
- Nature-friendly materials, for a better planet.
- 7-Day Returns, 100% Quality













































Reviews
There are no reviews yet.