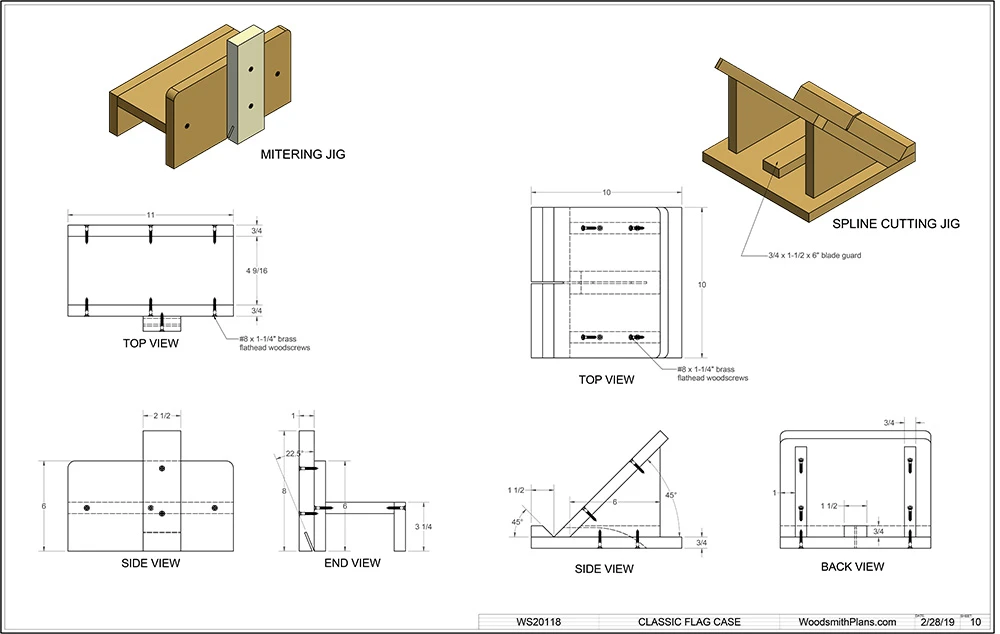
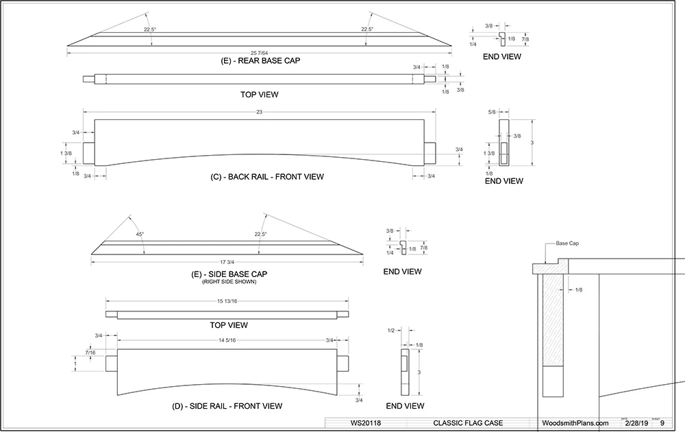
This Craftsman-style wall cabinet creates a nice illusion. Despite its small size, it looks impressive, both from a visual and a woodworking standpoint. In reality, the design is straightforward, and the woodworking involved is simple. The trick is in the details of construction.
Sale!
Craftsman Wall Cabinet
Original price was: £12.95.£9.07Current price is: £9.07.
- There are quality problems, free return and exchange
- Guaranteed High Quality
- Nature-friendly materials, for a better planet.
- 7-Day Returns, 100% Quality













































Reviews
There are no reviews yet.