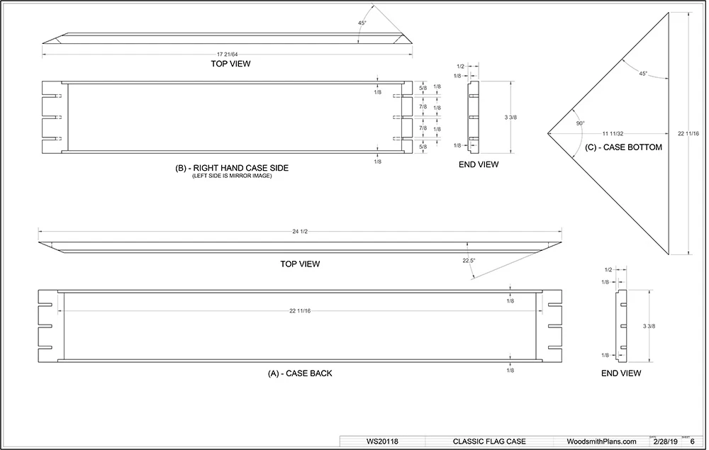
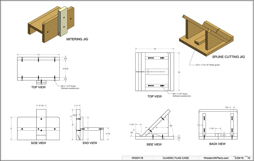
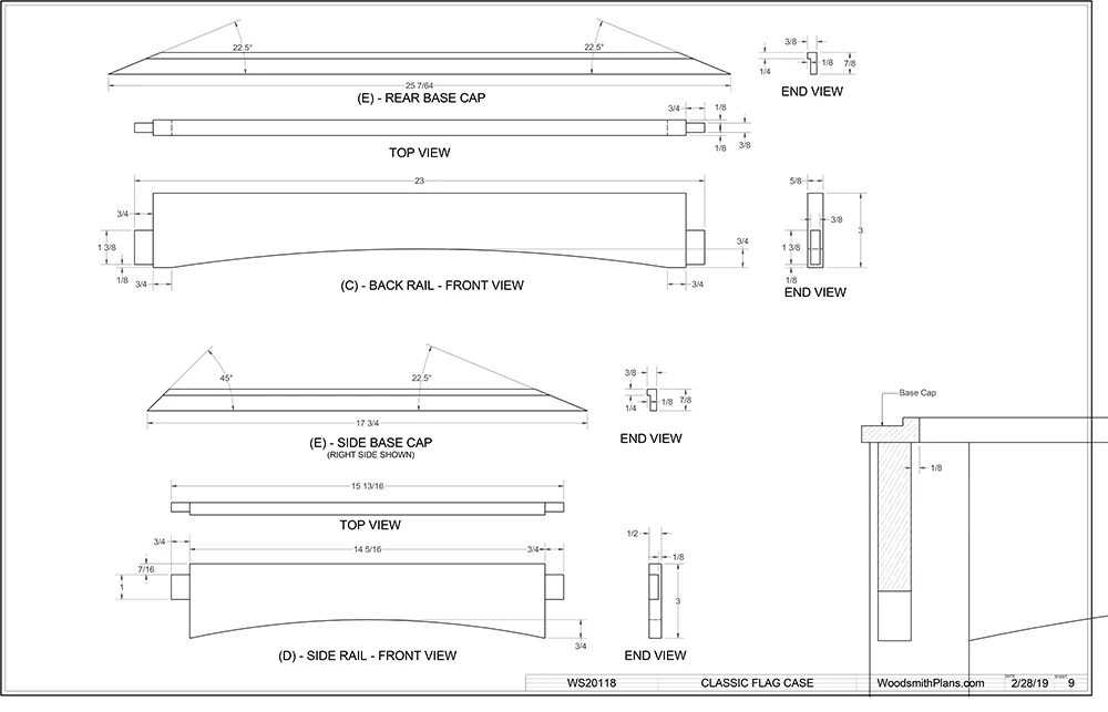
The woodworking to build this dartboard cabinet couldn’t be simpler. The basic cabinet relies on tongue and dado joinery, reinforced by the decorative corner brackets. The frame and panel doors are also pretty straightforward to build. For the scoreboards, we used chalkboard paint over hardboard. This works great and is much easier to cut and install than actual slate blackboards.
Sale!
Dartboard Cabinet
Original price was: £12.95.£9.07Current price is: £9.07.
- There are quality problems, free return and exchange
- Guaranteed High Quality
- Nature-friendly materials, for a better planet.
- 7-Day Returns, 100% Quality













































Reviews
There are no reviews yet.