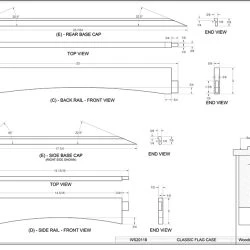
When you think of a plywood bookcase, the first thing that usually comes to mind is something you bring home in a cardboard box and slap together in a couple of hours. Well, this design changes all that. By using proven joinery techniques, one sheet of 3/4″ plywood, and some cherry facing, it’s a simple job to build this bookcase. Plywood keeps the expense down and a cherry face frame gives the bookcase an elegant and classic look.
Sale!
Low Cherry Bookcase
Original price was: £12.95.£9.07Current price is: £9.07.
- There are quality problems, free return and exchange
- Guaranteed High Quality
- Nature-friendly materials, for a better planet.
- 7-Day Returns, 100% Quality













































Reviews
There are no reviews yet.