These shadow boxes contain a unique hidden feature. The front frames can be quickly removed to allow you to change out your display whenever you like.
Sale!
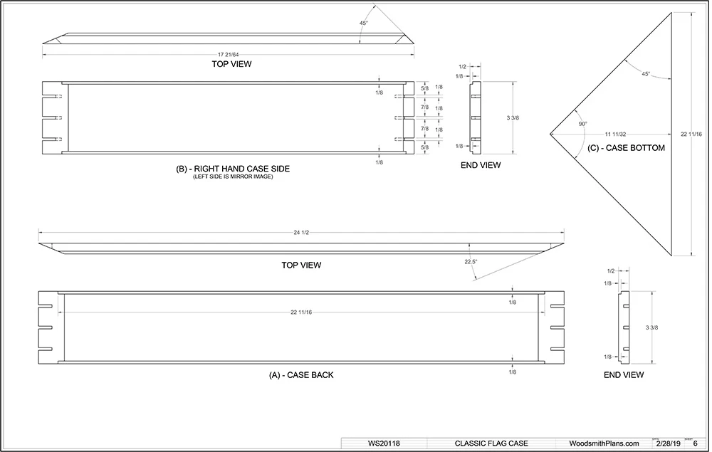
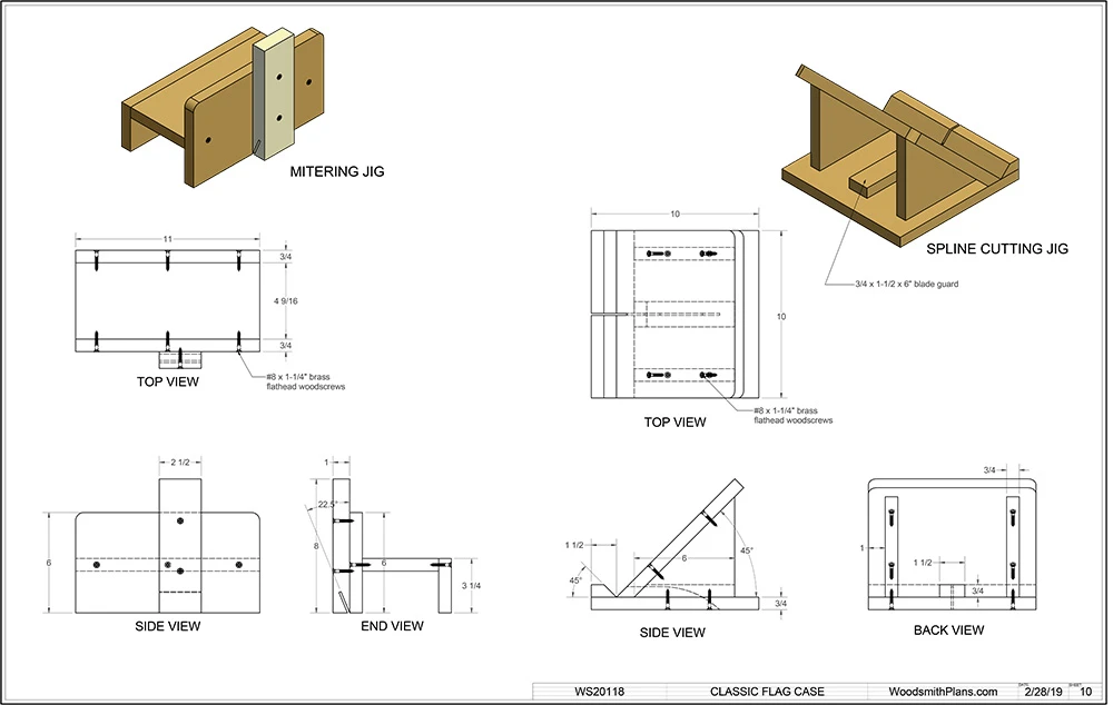
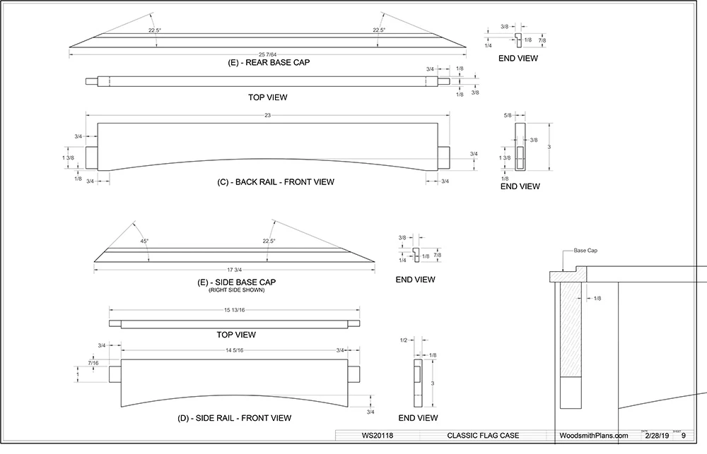
Shadow Boxes
Original price was: £9.95.£6.97Current price is: £6.97.
- There are quality problems, free return and exchange
- Guaranteed High Quality
- Nature-friendly materials, for a better planet.
- 7-Day Returns, 100% Quality













































Reviews
There are no reviews yet.