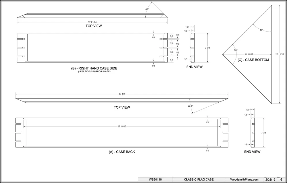
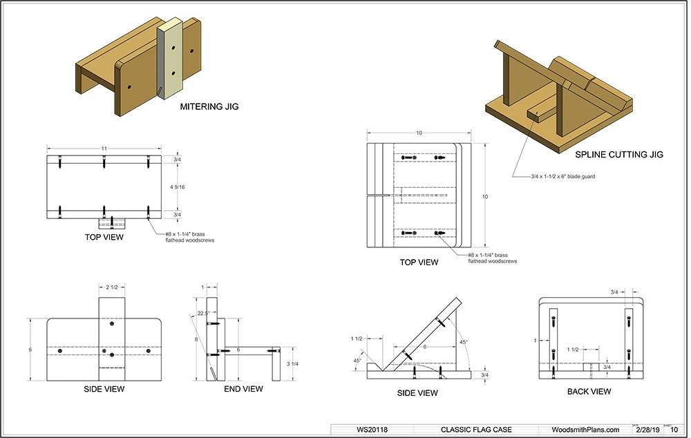
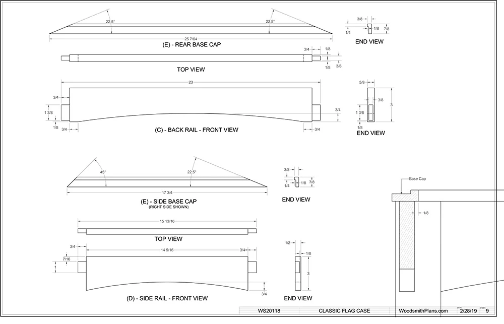
Storage. It’s one of those things that you can never have too much of. Often, storage is required in a place that’s inconvenient for traditional options. This wood-hinge cabinet takes that inconvenience and turns it into a stunning piece of wall furniture. When I first saw the design for this wall-mounted cabinet, there were two things that really stood out. The first is the wooden hinge. Looking at it, you would expect the hinges to be quite difficult to make. That isn’t the case, however. A few simple steps at the router table and table saw will have this hinge operating smoothly in short order. The second thing that I really took a liking to is the curves on the doors. Not only do the top and bottom of the doors end in a nice, smooth curve, but the doors themselves are also concave and convex to add a little depth to the closed cabinet. The curves take a little hand work but are easy to accomplish.
Sale!
Wood-Hinge Cabinet
Original price was: £9.95.£6.97Current price is: £6.97.
- There are quality problems, free return and exchange
- Guaranteed High Quality
- Nature-friendly materials, for a better planet.
- 7-Day Returns, 100% Quality













































Reviews
There are no reviews yet.